<公式>プラウドシーズン平和台 悠陽の邸|野村不動産-PROUD-

外観完成予想CG

NEWS

PICK UP PLAN

間取り一覧を見る

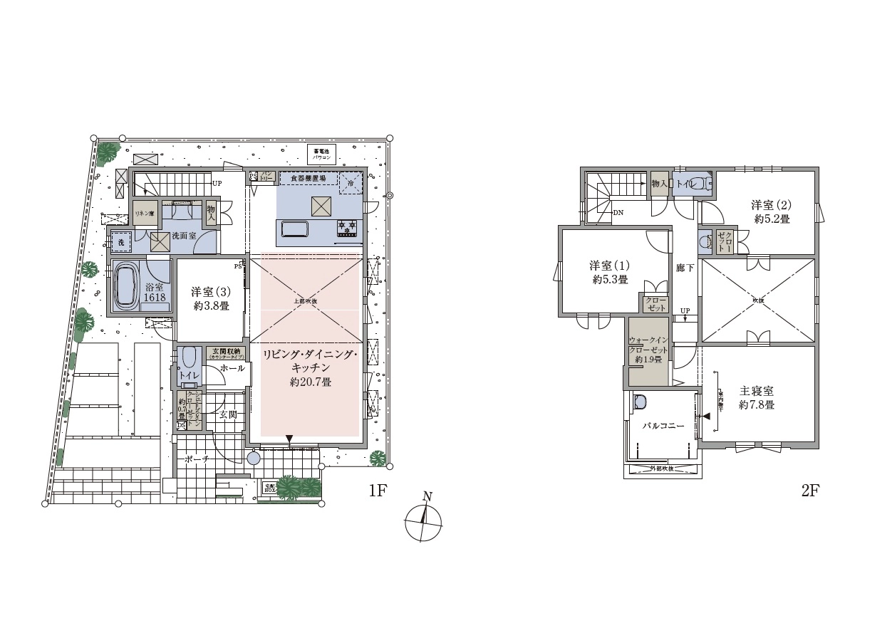
WIC=ウォークインクローゼット SIC=シューズインクローゼット

PICK UP CONTENTS 1 2 3 4 4

Access

アクセス

東京メトロ有楽町線・副都心線の2路線が利用できる「平和台」駅へ徒歩7分。※1
渋谷・有楽町・横浜にも直通でアクセスでき、他路線への乗り換えもスムーズに行えます。

アクセス
アクセス
路線図

    Location

    ロケーション

    駅の周辺には日々の買い物に便利なスーパーマーケットやドラッグストアなどの利便施設が充実。豊かな緑が織りなす公園も身近に点在して穏やかな邸宅風景を美しく彩ります。

    ロケーション
    ロケーション
    左上:ライフ 平和台店(約460~500m/徒歩6~7分)・右上:ドラッグストア クリエイト エス・ディー 練馬平和台店(約380~420m/徒歩5~6分)・左下:どんぐり山の森緑地(約140~180m/徒歩2~3分)・右下:最勝寺みのり保育園(約530~570m/徒歩7~8分)※1

      Plan

      間取り

      全邸LDK18畳超のゆとりを確保。リビングの天井高も約2.9mとして開放的な空間を演出します。シューズインクローゼットを全邸に設置するなど収納にもこだわりました。

      間取り
      間取り
      STAGE1内観完成予想CG

        Brand

        プラウドシーズンについて

        プラウドは時代の先をいく住みやすさ、想像を超える美しさ、選び抜いた立地で、一人ひとりの自分らしい暮らしを追求しています。住むほどに愛される「世界一の時間」をお届けするために。

        プラウドシーズンについて
        プラウドシーズンについて
        image photo