Premium Floor
池袋の空とつながる、
上階プレミアムフロア。
Premium Gallery
最大143㎡の
プレミアムプランをご用意。
41階以上の住戸では、空間設計や設備等のグレードを高めたプレミアム住戸をご用意。
煌めく東京のパノラマを一望する風景とともに、暮らしをより深める専有空間をご用意しました。
Premium View
煌めく東京のパノラマを一望する風景
現地より37階相当の高さから北・東・西・南方向を望む眺望写真(2025年8月撮影)
Premium plan
豊かなる陽光を邸内に
全居室開口の
「フルブライトプラン」
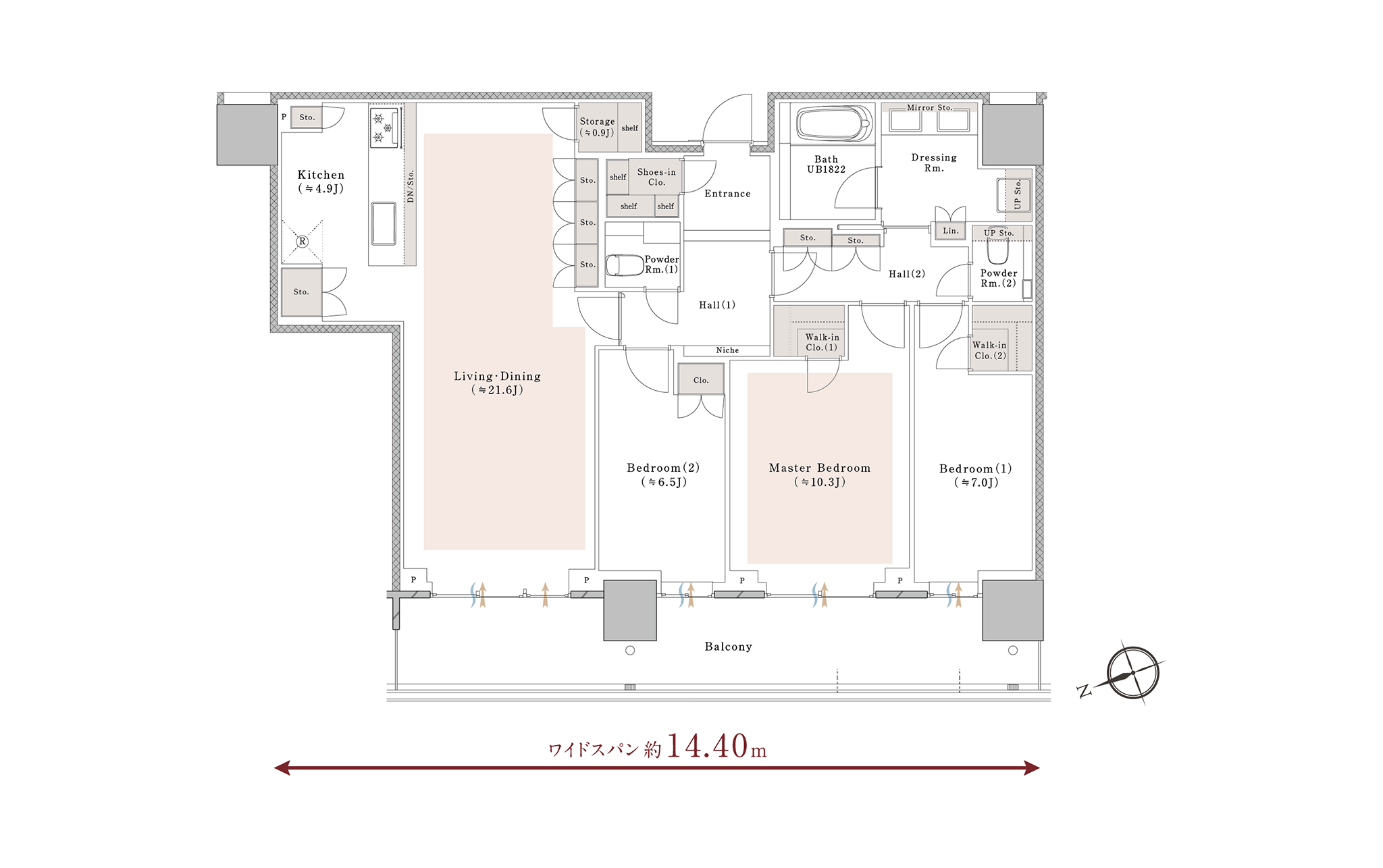
WStype
3LDK+ST+WIC+SIC
住居専有面積94.79㎡ (約28.67坪)
Walk-in Clo.:ウォークインクローゼット(WIC)
Shoes-in Clo:シューズインクローク(SIC)
Clo:クローゼット Sto:物入 UP Sto:上部吊戸棚 DN/Sto.:下部収納 UP/Lin:上部リネン庫 Lin:リネン庫 Mirror Sto:鏡裏収納 Rm:ルーム(Room) ※採光マークは開口部の位置を示しており、常時直射日光が入ることを示したものではありません。
床暖房範囲 収納 通風 採光
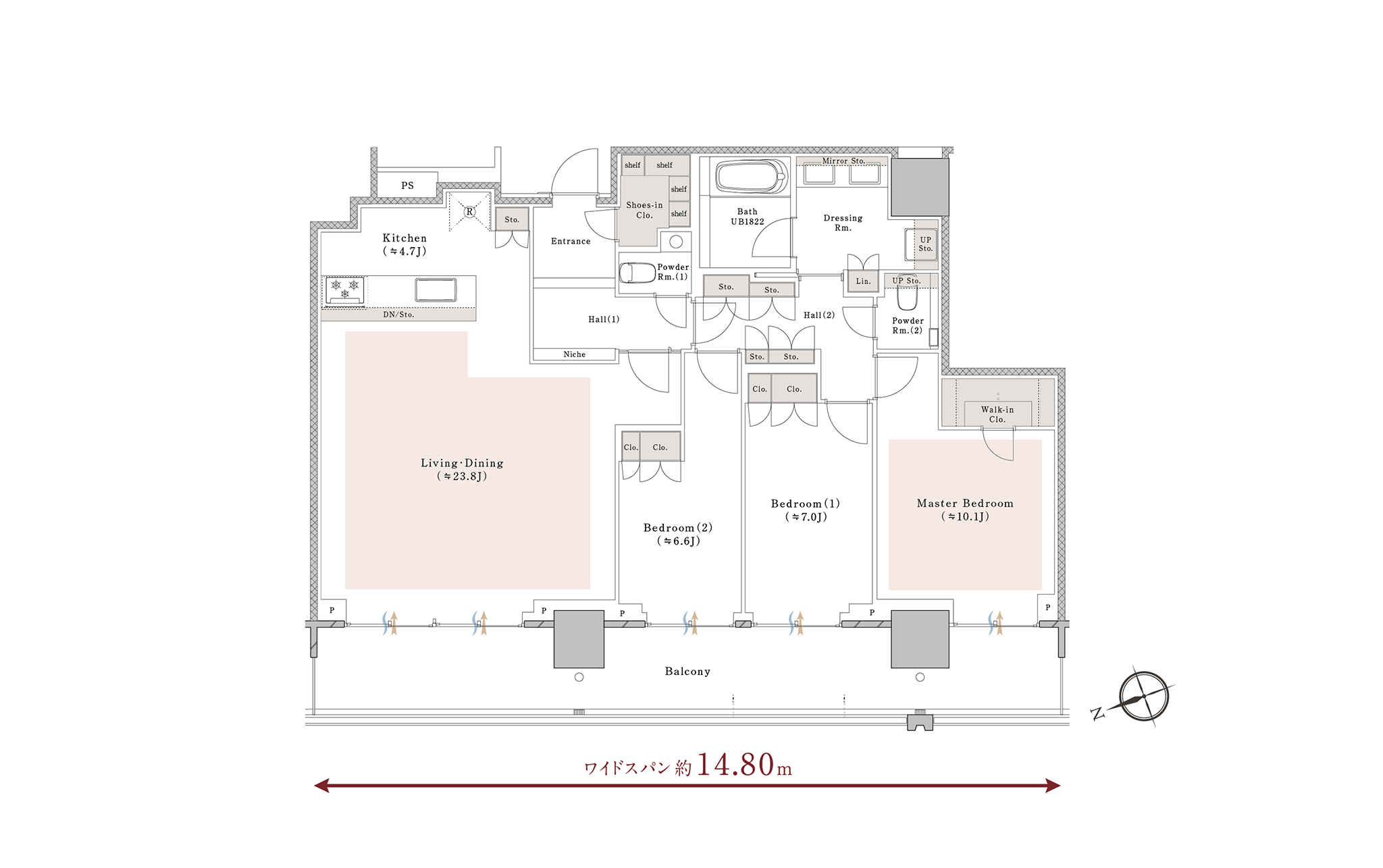
EMtype
3LDK+2ST+WIC+SIC
住居専有面積111.06㎡ (約33.59坪)
Walk-in Clo.:ウォークインクローゼット(WIC)
Shoes-in Clo:シューズインクローク(SIC)
Clo:クローゼット Sto:物入 UP Sto:上部吊戸棚 DN/Sto.:下部収納 UP/Lin:上部リネン庫 Lin:リネン庫 Mirror Sto:鏡裏収納 Rm:ルーム(Room) ※採光マークは開口部の位置を示しており、常時直射日光が入ることを示したものではありません。
床暖房範囲 収納 通風 採光
44階相当の高さより
北東方向の眺望
EMタイプ44階相当の高さより北東方向を望む(2023年10月撮影)
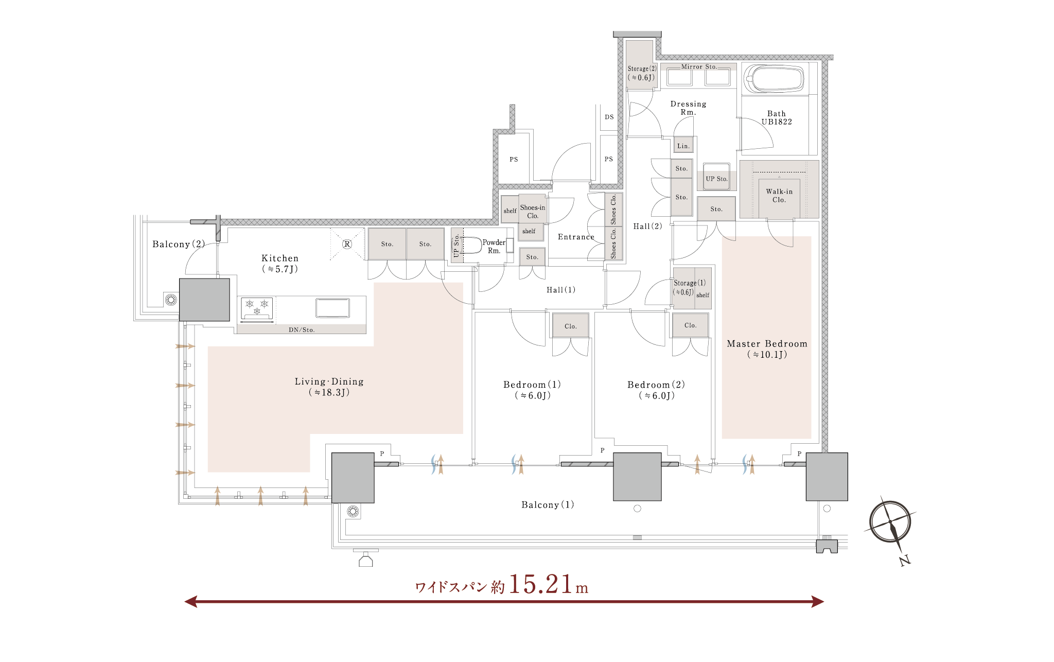
WWtype
3LDK+ST+2WIC+SIC
住居専有面積120.60㎡ (約22.99坪)
Walk-in Clo.:ウォークインクローゼット(WIC)
Shoes-in Clo:シューズインクローク(SIC)
Clo:クローゼット Sto:物入 UP Sto:上部吊戸棚 DN/Sto.:下部収納 UP/Lin:上部リネン庫 Lin:リネン庫 Mirror Sto:鏡裏収納 Rm:ルーム(Room) ※採光マークは開口部の位置を示しており、常時直射日光が入ることを示したものではありません。
床暖房範囲 収納 通風 採光
46階相当の高さより
西方向の眺望
WWタイプ46階相当の高さより西方向を望む(2023年10月撮影)
Premium Equipment
Kitchen
Powder
Bath Room
Pick Up
プレミアムフロア住戸
駐車場優先権
※駐車場利用料は有料です。また、区画については抽選にて決定いたします。
※詳細は係員までお尋ねください。
※1.再開発エリア最前列、最南端とは、東京都が指定した池袋駅周辺の特定都市再生緊急整備地域内の再開発事業の中で、本物件が最も南に位置しており、かつ新宿・渋谷方面から見た最前列に位置していることを示したものです。周辺の開発状況によって変更になる可能性がございます。(出典:豊島区ホームページ内「都市再生緊急整備地域」より/2024年3月末日現在)
※掲載の間取図は計画段階の図面を基に描き起こしたもので、実際とは異なります。
※掲載のENタイプ(47階)室内完成予想CGは、計画段階の図面を基に描いたものに本物件47階相当(約170m)より南東方面を望む眺望写真(2022年11月撮影)を合成しCG加工を施したもので実際とは異なります。眺望・景観は各階・各住戸によって異なり、今後の周辺環境の変化に伴い将来にわたって保証されるものではありません。また、家具・調度品等は販売価格に含まれておりません。
※掲載のimage photoは、イメージであり実際のものとは異なります。
※掲載の設備・室内写真は参考写真・image photoを除きモデルルームタイプ(EJタイプ)を2024年5 月に撮影したもので、一部有償オプションが含まれます。有償オプションには対象住戸・申込時期および、変更できる内容に制限があります。設備・仕様はタイプにより異なる場合があります。詳しくは係員にお問い合わせください。家具・照明・調度品・備品等は販売価格に含まれておりません。
※セレクトメニューのお申込みには対象タイプ及び申込時期に制限がございます。詳しくは係員にお尋ねください。
※各種セレクト申込書をご提出いただきます。ご提出以降の内容の変更は、時期・内容に関わらずお受けできませんので必ず事前に内容をご確認ください。※仕様につきましては、廃番等により変更となる場合がございます。
※掲載の素材・色調については、印刷物のため実際と異なります。サンプルコーナーにて必ずご確認ください。
※無償セレクト・オーダーメイド(有償)には対応住戸や申込期限に制限があります。
※現地北東側上空より臨む外観完成予想CGは計画段階の図面を基に描いた外観完成予想図と、現地から約170m離れた地点の地上約90ⅿ相当の高さから撮影した眺望写真(2025年6月撮影)をCG加工したもので実際とは異なります。また、今後変更になる場合があります。外観の細部・設備機器等及び周辺建物・電柱・架線・標識・ガードレール等につきましては一部省略または簡略化しております。タイルや各種部材につきましては、実物と質感・色等の見え方が異なる場合があります。植栽につきましては特定の季節の状況を表現したものではなく、竣工時には完成予想図程度には成長しておりません。植栽のボリューム・形状は実際と異なる場合があり、樹種等は変更となる場合があります。周辺の環境は変わる可能性があり、眺望は将来に渡って保証されるものではありません。
※掲載のエントランスホール完成予想CGは計画段階の図面を基に描いたもので実際とは異なります。また、家具・調度品を含め内容は計画段階のもので今後変更になる場合があります。タイルや各種部材につきましては、実物と質感・色等の見え方が異なる場合があります。共用施設及びサービスについては計画段階のものであり、一部変更になる可能性がございます。ご利用にあたっては、管理規約・使用細則等に従っていただきます。また、メインエントランス、エントランスホール、車寄せ、2階エントランスを除く施設及びサービスは有料・予約制となる予定です。
※眺望写真は現地37階相当の高さから北・東・西・南方向を2025年8月に撮影した写真を基に色調等CG加工を施したしたもので、実際の眺望とは異なります。眺望・景観は、各階・各住戸により異なり、今後の周辺環境の変化に伴い将来にわたって保証されるものではありません。写真内の箱状の表現(※1)は本物件の北側約20m先に、事業主・南池袋二丁目C地区市街地再開発組合による地上52階建・地下2階建のマンション建設計画に基づくものです(2027年4月中旬完成予定)。この建物が竣工しますと本物件の北側住戸の眺望、通風等に影響が生じる場合がありますのであらかじめご了承ください。周辺の環境は変わる可能性があり、眺望は将来に渡って保証されるものではありません。※掲載のENタイプ(47階)室内完成予想CGは、計画段階の図面を基に描いたものに本物件47階相当(約170m)より南東方面を望む眺望写真(2022年11月撮影)を合成しCG加工を施したもので実際とは異なります。眺望・景観は各階・各住戸によって異なり、今後の周辺環境の変化に伴い将来にわたって保証されるものではありません。また、家具・調度品等は販売価格に含まれておりません。
※掲載のEAタイプ(16階)室内完成予想CGは、計画段階の図面を基に描いたものに本物件16階相当(約66m)より南東方面を望む眺望写真(2022年11月撮影)を合成しCG加工を施したもので実際とは異なります。眺望・景観は各階・各住戸によって異なり、今後の周辺環境の変化に伴い将来にわたって保証されるものではありません。また、家具・調度品等は販売価格に含まれておりません。
※掲載の設備・室内写真は、モデルルームタイプ(ECタイプ)を2024年5月に撮影したもので、一部有償オプションが含まれます。有償オプションには対象住戸・申込時期および、変更できる内容に制限があります。設備・仕様はタイプにより異なる場合があります。詳しくは係員にお問い合わせください。家具・照明・調度品・備品等は販売価格に含まれておりません。
※オーダーメイドや有償オプションには対象住戸・申込時期および、変更できる内容に制限があります。詳しくは係員にお問い合わせください。
※掲載のimage photoは、イメージであり実際のものとは異なります。
※掲載の情報は2024年3月末日現在のもので、今後変更になる場合がございます。