【PROUD 公式ホームページ】B1タイプ|プラン|プラウド四谷|野村不動産-PROUD-

B1type

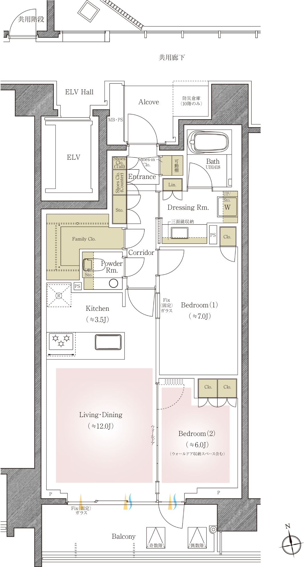
2LDK+FC+SIC

専有面積

70.07(約21.19坪)

バルコニー面積 / 10.33㎡

B1type

通風 採光 床暖房 収納

FC:ファミリークローク SIC:シューズインクローク

  • ※掲載の図面は計画段階のものであり、今後変更になる可能性があります。
  • ※掲載の情報は2025年11月現在のもので、今後変更になる場合がございます。

プラウドの物件を探す

プラウドの物件一覧