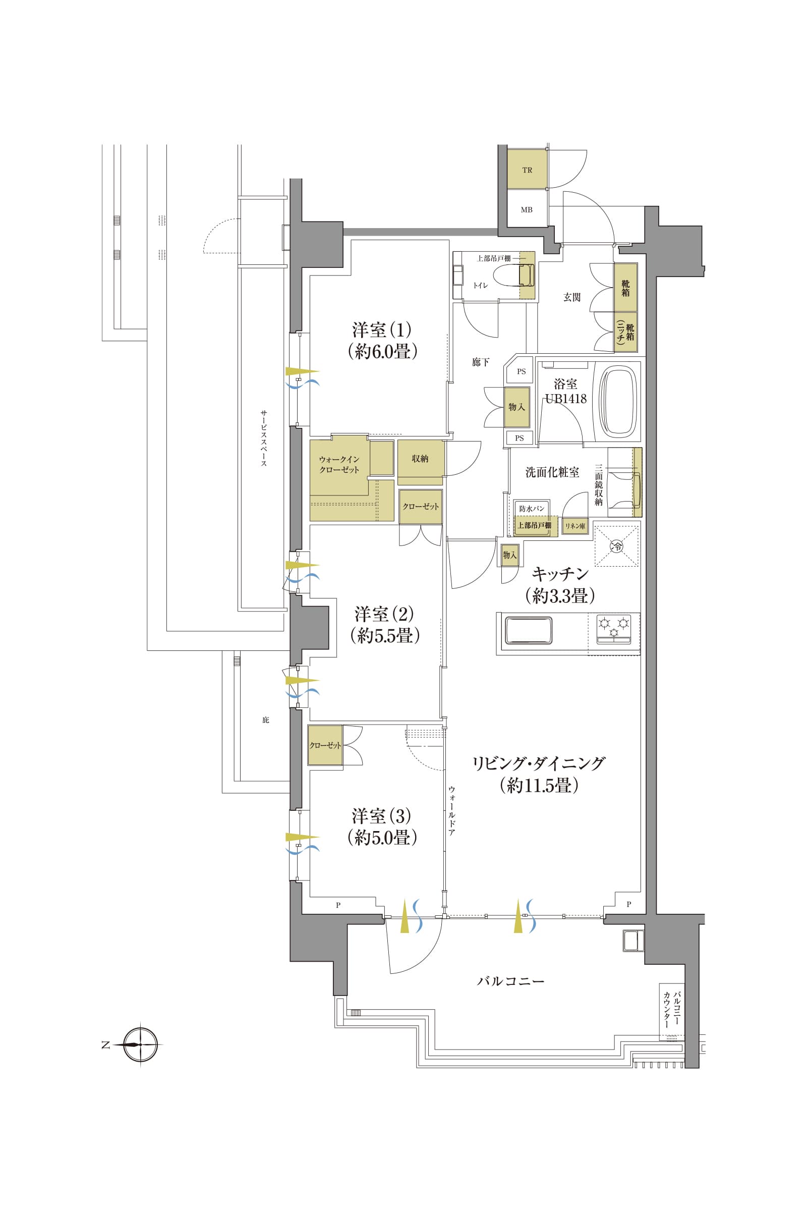
A type
3LDK+WIC
住戸専有面積 73.86m2
専有トランクルーム面積0.54m2
合計専有面積 74.40m2
バルコニー面積 14.08m2

WIC:ウォークインクローゼット
3LDK+WIC
住戸専有面積 73.86m2
専有トランクルーム面積0.54m2
合計専有面積 74.40m2
バルコニー面積 14.08m2

WIC:ウォークインクローゼット
※掲載の図面は計画段階のものであり、今後変更になる可能性があります。
※共用部は計画段階のものであり、一部変更になる可能性がございます。ご利用にあたっては、管理規約・使用細則等に従っていただきます。