PLAN DETAILS

image photo
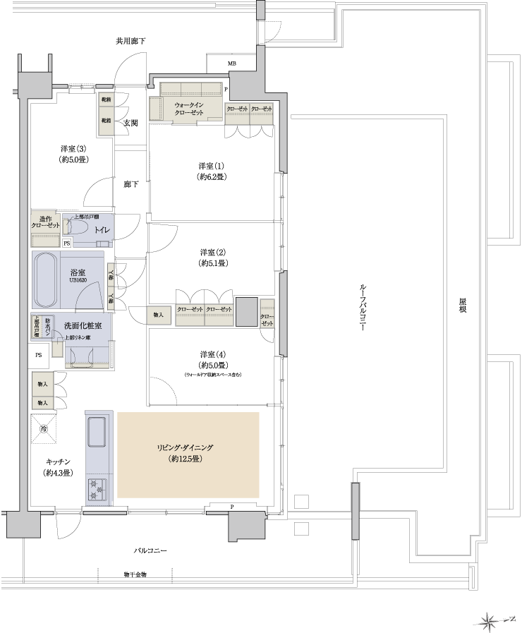
E-11rTYPE
4LDK+WIC
85.85m²(約25.96坪)
- バルコニー面積18.36m²
- ルーフバルコニー面積46.50m²
- ひとつ上のゆとりを満喫する、
4LDK・3面開口角住戸。 - キッチン出入口も備えた
開放的なプラン。
暮らす楽しみが一層広がる
ルーフバルコニー付き。

-
床暖房
-
収納
-
WIC:ウォークインクローゼット
※掲載の間取りは計画段階の図面を基に描き起こしたもので今後変更になる場合がございます。