「70m²超中心※1
×
全戸大型収納※2プラン
×
天井高約2.5m※3(一部住戸除く)」
「川崎」JR南武線「矢向」駅より駅直通4分・「東京」駅26分※4
行政・商業施設等が集う
中枢※5エリアの住宅地
コンセプトルーム案内会ご予約受付中
おかげさまで93戸契約済(2025年12月時点)
南東向き2LDK60.23m²5,398万円~
南東向き3LDK72.21m²6,098万円~
※先着順受付中につき、売却済みの場合はご容赦ください。
※掲載の販売価格には消費税等の税率10%相当額が含まれております。
PLAN
バルコニー面積12.57㎡
南西向き住戸 販売価格 6,348万円(税込)
※先着順受付中につき、売却済みの場合はご容赦ください。
※掲載の販売価格には消費税等の税率10%相当額が
含まれております。
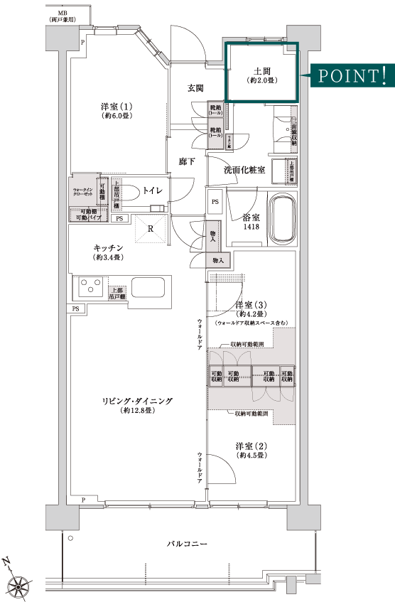
玄関先を多目的に使える
「土間スペース」

WIC:ウォークインクローゼット
床暖房
収納
LOCATION
ターミナル「川崎」駅生活圏。
利便性と穏やかな住環境が叶う幸区エリア。※5
「川崎」駅生活圏。都心と神奈川の主要駅へ
全方位アクセスしやすいポジション。
物件エントリーの流れ
STEP01
物件エントリー
「物件エントリーはこちら」ボタンから
「プラウド川崎矢向」の物件エントリーが
可能でございます。
STEP02
「デジタルライブラリー」のご案内
お客様のメールアドレス宛に
デジタルライブラリーのURLをお送りいたします。
STEP03
「デジタルライブラリー」の閲覧
「デジタルライブラリー」にご登録後、
様々なコンテンツをご覧いただけます。
►未公開間取り
►住戸表
►今後のスケジュール
►住宅購入読本
※2:大型収納とは、ウォークインクローゼットや納戸などを指しています。
※3:天井高約2.5mとは、リビングダイニングの天井高(下がり天井部分を除く)が約2.5mであることを指しています。(D1type・D2type・D3type・D4type・D5type除く)
※4:JR南武線「矢向」駅よりJR「川崎」駅へ直通4分(日中時4分)、「品川」駅へ17分・JR南武線各停利用「川崎」駅でJR東海道本線に乗換え(日中時17分)。掲載の電車所要時間は通勤時のもので時間帯により異なります。( )内は日中平常時の所要時間です。また、乗換・待ち時間を含みます。Yahoo!路線情報2023年8月現在調べ。通勤時は7:30〜9:30、日中平常時は9:31〜16:30に目的地に到着する電車を表記しています。
※5:中枢とは、川崎市幸区の区役所など行政公共機関が集積する本計画地周辺エリアを指しています。
※距離表示は地図上の概測距離を、徒歩分数表示は80m=1分として算出し、端数を切り上げたものです。
※現地周辺航空写真は、2023年9月に撮影し加工したもので実際とは異なります。光柱は建物の高さや規模を示すものではございません。
※掲載の完成予想CGは、計画段階の図面を基に描き起こしたもので実際とは異なります。外観や敷地内の細部・設備機器等及び周辺建物・電柱・架線・標識・ガードレール等につきましては一部省略または簡略化しております。タイルや各種部材につきましては、実物と質感・色等の見え方が異なる場合があります。植栽は特定の季節の状況を表現したものではなく、竣工時には完成予想図程度には成長しておりません。ボリューム・形状は実際と異なる場合があり、樹種等は変更となる場合があります。周辺の環境は変わる可能性があり、眺望は将来に渡って保証されるものではありません。
※掲載のエリア概念図は、地図や路線図などを参考に描き起こしたもので実際とは異なります。
※掲載のimage photoは実際とは異なります。
トップ
コンセプト
プラン
ロケーション
アクセス
ライフスタイル
デザイン
設備仕様
プラウドについて