I1type
3LDK+WIC
住戸専有面積76.60㎡
■ 専有トランクルーム面積/0.38㎡
■ 合計専有面積/76.98㎡(約23.28坪)
■ バルコニー面積/5.20㎡

WIC=ウォークインクローゼット
              床暖房範囲
              
収納
            
- ※掲載の図面は計画段階のものであり、今後変更になる可能性があります。
 
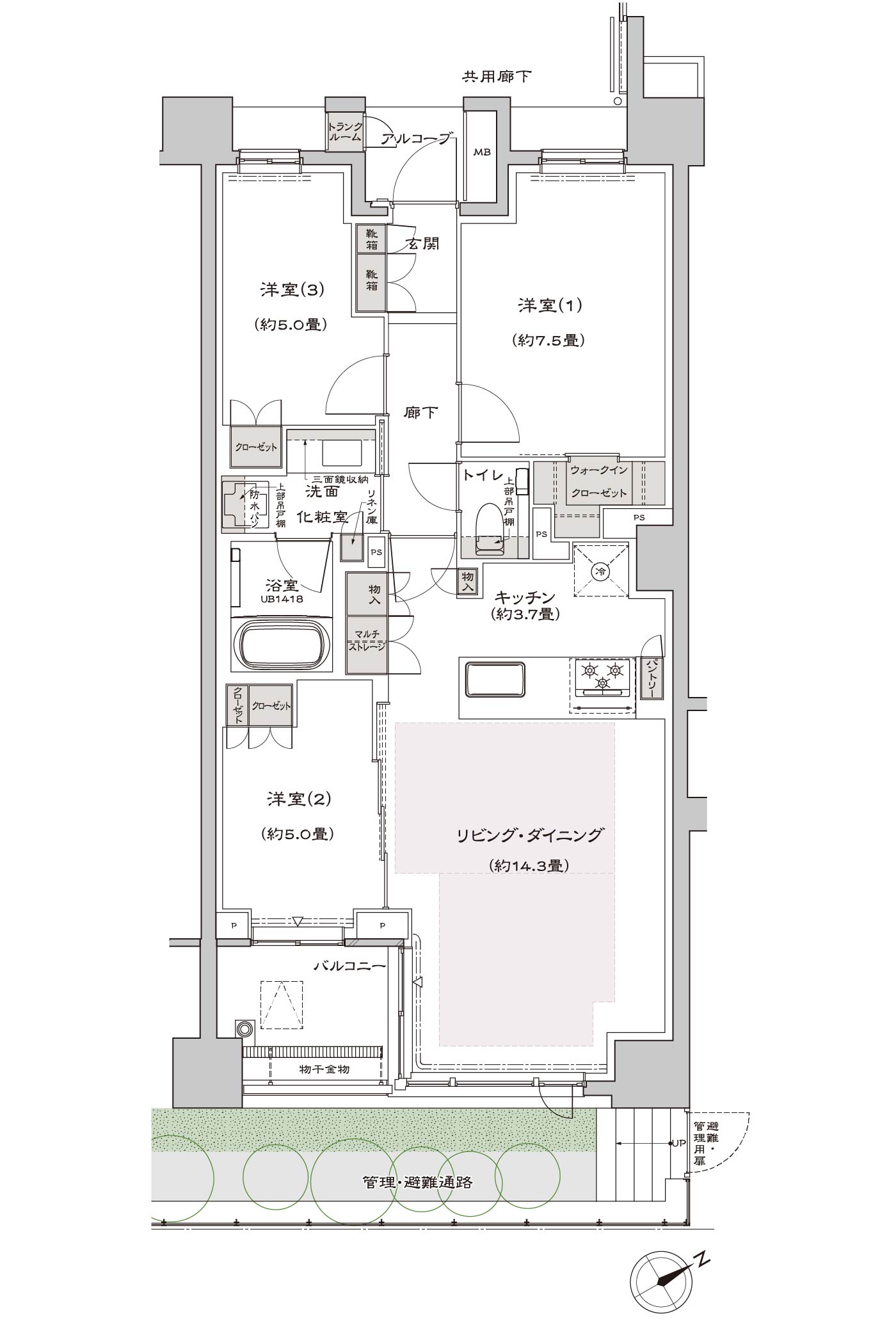
3LDK+WIC
住戸専有面積76.60㎡
■ 専有トランクルーム面積/0.38㎡
■ 合計専有面積/76.98㎡(約23.28坪)
■ バルコニー面積/5.20㎡

WIC=ウォークインクローゼット
              床暖房範囲
              
収納
            
プラウドの物件を探す
プラウドの物件一覧