【PROUD 公式HP】106SL-Eタイプ|プラン|-プラウドタワー神戸垂水-|野村不動産の新築マンション

LUXURY FLOOR

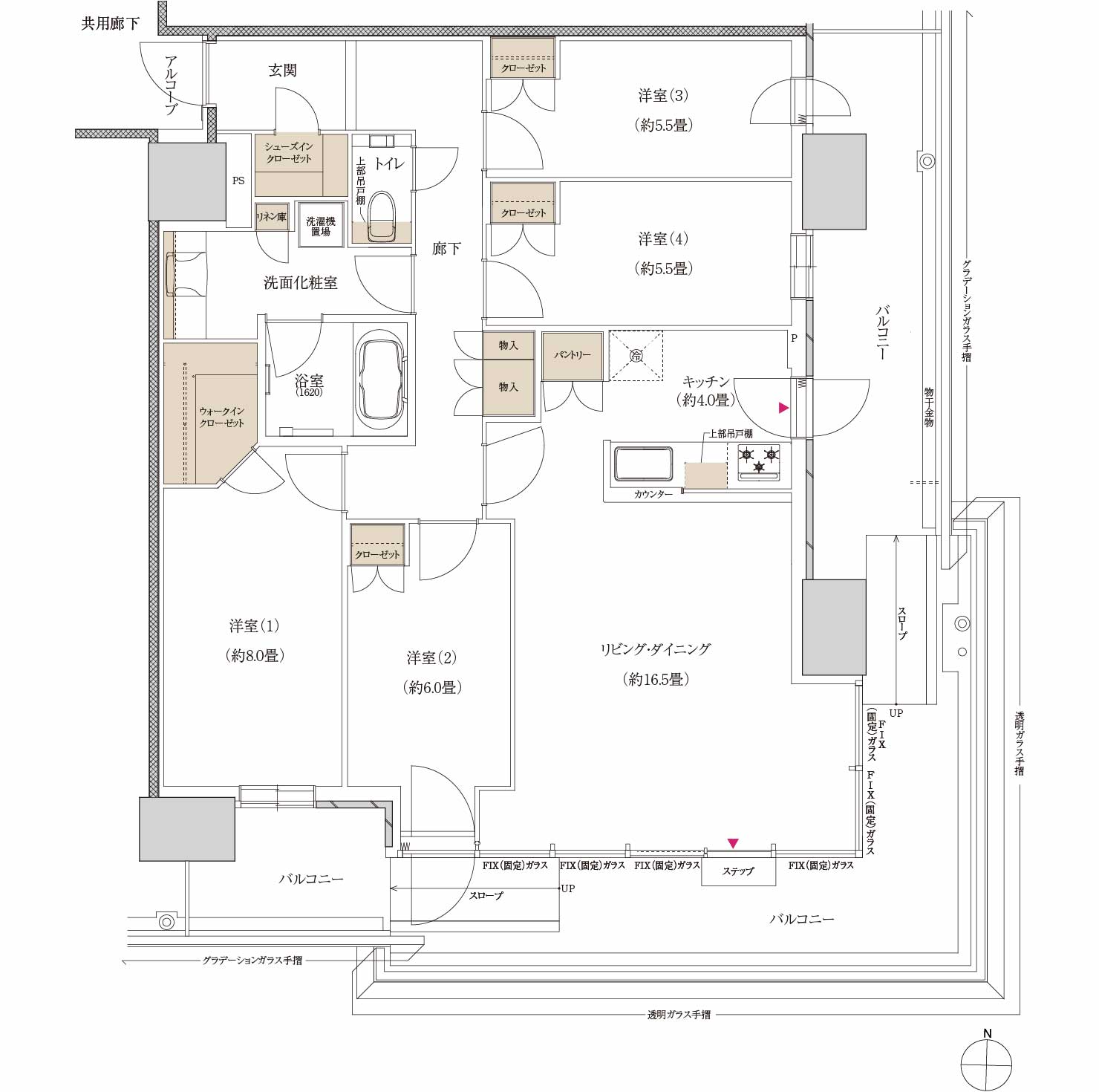
106SL-ETYPE

4LDK+WIC+SIC

住戸専有面積 / 106.58(約32.24坪)

バルコニー面積 / 41.77(約12.63坪)

収納 床暖房

  • 平面図
  • WIC:ウォークインクロゼット SIC:シューズインクローゼット
     
  • ※掲載の間取り図と平面図は計画段階のものであり、今後変更になる可能性があります。
  • ※掲載のimage photoは、イメージであり実際の内容(もの)とは異なります。
  • ※掲載の情報は2024年7月時点のものであり、今後変更になる場合があります。

プラウドの物件を探す

プラウドの物件一覧