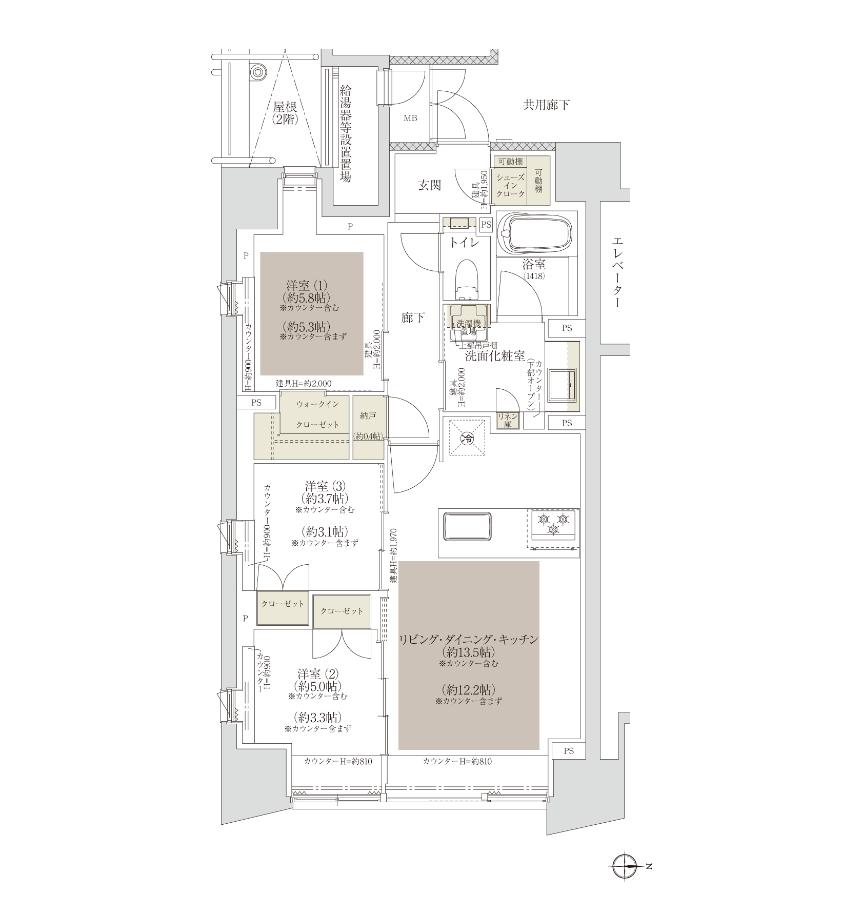
– DETAIL
Ctype
3LDK+N+WIC+SIC
住戸専有面積
68.55m²(約20.73坪)
- POINT
- 3人~4人でお住まい可能な70㎡弱。
- 東・南2方向の開口部。
- 玄関から住戸内が見通しにくいクランクした廊下。
- LD横洋室(2)の3枚扉を開放すると約18.5帖のLDKが出現。
- リビングインでない洋室(1)はプライバシー性が保ちやすい。
- デッドスペースがうまれにくい全洋室の扉に引戸を採用。
- 季節のものを収納しやすい納戸付き。
- 開放感を感じやすい対面オープンキッチン。
- キッチン・洗面室が近く効率的な水回り動線。
- 洗面室内のカウンター収納下部はオープンなため、ペットのトイレや脱衣カゴなど
- ちょっとしたものを収納するのに便利なスペース。

床暖房範囲
収納
WIC:ウォークインクローゼット SIC:シューズインクローク N:納戸