<公式>プラウドシーズンについて|プラウドシーズン平和台 悠陽の邸|野村不動産-PROUD-

Brand

Brand

プラウドは時代の先をいく住みやすさ、想像を超える美しさ、選び抜いた立地で、お客さま一人ひとりの自分らしい暮らしを追求しています。住むほどに愛される「世界一の時間」をお届けするために。

プラウドシーズン成城五丁目(分譲済)

プラウドが追い求める5つの価値

暮らしはじめた瞬間から、その先もずっと住むほどに豊かさの実感が深まる、住まいを目指して。私たちは、住まいづくりにおいて、5つの価値を追い求めています。

プラウドブックについてはこちらから

プラウドのこだわりをまとめたプラウドブックをご覧いただけます。

本物件のポイント1

安心と安全

製・販・管一貫体制の先駆けとして、永きに渡り培ってきた知識や経験を活かし、設計段階と施工時、共に厳格な基準を設けて品質を管理。ご入居後から、何年先をも見据えた安心と安全をお届けします。

image photo

地歴・地盤調査

まず土地取得前にかつてその土地がどんな状況にあったかを把握します。行政が発行しているハザードマップの確認や、過去の浸水履歴などを調べられる限り調べ、徹底した安心と安全を目指しています。

地歴・地盤調査
参考写真

LVL

建物の土台には木材を薄く削り圧着させたLVL(単板積層材)を採用。断熱性や復元性などの木材自体が持つ良さを活かしながら、変形や劣化に強く防腐性・防蟻性も向上した機能性に優れた素材です。そのLVLを建物の土台に採用しているため、耐久性に優れ床鳴りなどを軽減する効果もあります。

※LVLとは、ラミネイテッド・べニア・ランバー(Laminated Veneer Lumber)の略で、日本語では単板積層材と呼ばれています。

LVL
参考画像

NFモルタル

外観デザインを支える素材として、一般的なモルタルと配合成分を変えた、オリジナルのNFモルタルをモルタルメーカーと共同で開発しました。

NFモルタル
参考画像

防水シート

外壁と屋根の下張材には改質アスファルト防水シートを採用。高温でたるみにくく、低温で割れにくい特性や弾性を備えています。釘穴に対する防水性や耐久性にも優れています。

防水シート
参考画像

住宅性能評価

国土交通省の認定を受けた第三者評価機関が全国共通ルールのもと、住宅の性能を公平な立場で評価し、その結果を表示した書面を取得することで住まいの信頼性を高め、安心の住宅ローン「フラット35」を利用することができます。

住宅性能評価

白アリ対策

木材に巣くうシロアリ。フラット35の基準では、地面から約1mの高さまでの範囲に防蟻措置を行うことと定められています。プラウドシーズンは基礎天端から約1mの範囲に、目視確認できる着色した防蟻薬剤を塗布する独自基準で施工しています。

白アリ対策
参考画像
本物件のポイント2

機能性と心地良さ

いつまでも、どなたにも快適な暮らしをお届けするために、機能性と心地良さを兼ね備えた住まいを追求。お客さまの声に耳を傾け、新たな発想から豊かな空間を創造し続けています。

プラウドシーズン成城五丁目(分譲済)

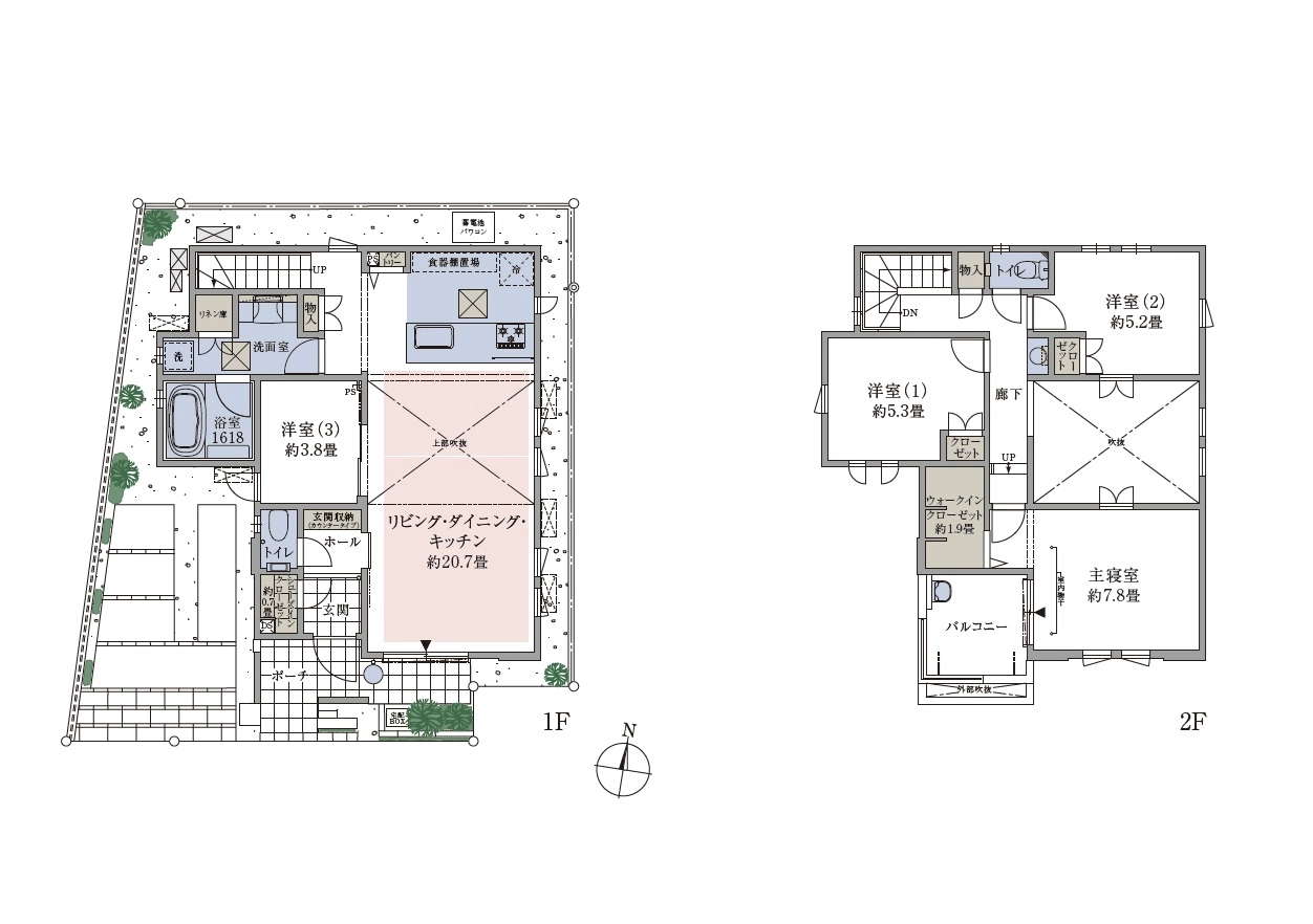
全区画LDKの広さを18畳以上確保

天井高は最大2.9mに達し、家族が自然と集まる開放的でゆとりある空間をデザインしています。

全区画LDKの広さを18畳以上確保
間取りプラン STAGE1

豊富な収納力

ウォークインクローゼットやシューズインクローゼット・リネン庫に備蓄倉庫など、大型収納を採用した多彩なプランニング。

本物件のポイント3

時と共に深まるデザイン

住むほどに深まる愛着、使い込むほどに馴染む風合い。外観はもちろん、樹々の一本一本、建物の細部に至るまで吟味し、時を重ねるほどに深みを増す住まいを創造します。

外観完成予想CG

縦リブ意匠の建築・外構デザイン

柱型を強調する縦リブのデザインを、建物だけでなく門柱や接道部の舗装にまで連続して展開。建物と外構が響き合う統一感ある意匠が、街並みに美しい一体感を与えます。

大判タイル+石目調吹付

高級感のあるアースカラーの大判タイルに加え、味わい深い石目調吹付を採用。質感の異なる素材を組み合わせることで、外観に深い陰影と、邸宅に相応しい重厚な表情を演出します。

大判タイル+石目調吹付
外観完成予想CG

ガラス手摺バルコニー

室内に開放感と明るさをもたらすガラス手摺バルコニーを採用。空や風景を映し込みますので、外観に透明感を与えモダンな表情を描きます。

バルコニーガラスパネル
外観完成予想CG

街の重厚感を演出するコーナーウォールやベンチ

街区の角には、端正なタイルと石積みを組み合わせたコーナーウォールを配置。自然石の重厚なマテリアルが植栽の緑と響き合い、街路に深い陰影と邸宅街らしい格式を醸し出します。

街の重厚感を演出するコーナーウォールやベンチ
外観完成予想CG
本物件のポイント4

環境と未来への対応

先進技術と独自の発想による新しい取り組み。お客さまの価値観やライフステージの変化、環境への配慮や地域社会との共生を考慮し、住まいと暮らしの未来を見据えています。

image photo

一次エネルギー消費量・断熱性能等級

環境負荷の少ない、エコで快適な暮らしを実現するための対策を講じ「一次エネルギー消費量」は「等級6」を、室内の熱を損失することを少なくする対策を講じることで「断熱性能」は「等級5」を取得しています。

一次エネルギー消費量・断熱性能等級

エコワン

ガスと電気を組み合わせたハイブリッド給湯・暖房システム「エコワン」を採用。ガスと電気でお湯をつくり、給湯から床暖房までを1台でまかなえ、環境にも家計にも優しい「住まいのエネルギーインフラ」です。

エコワン
参考写真

太陽光発電システム+蓄電池搭載

太陽光発電システムは、太陽光電池モジュールで作った電気(直流電流)を、パワーコンディショナを通して家庭内で使える電気(交流電力)に変換し、その電気を使うことができるシステムです。さらに蓄電池を組み合わせることで、昼間に余った電気を貯めて夜に使うことができ、電力の自給自足に近づけます。これにより、電気代の節約や環境にやさしい暮らしが実現します。

太陽光発電システム+蓄電池搭載
image photo
本物件のポイント5

豊かな暮らしへのエスコート

定期的なアフターサービスだけでなく、コミュニティ活動のサポートや災害への備え。さらには暮らしにまつわる各種サービスの提供など末永くお客さまに寄り添い、豊かな暮らしへとエスコートします。

image photo

野村不動産グループ カスタマークラブ

日常のお困りごとにお応えする住まいの各種サポートや、上質な時間をお届けする各種ご優待、ライフスタイルの変化を見据えた多彩なサービスまで。グループの総合力を活かし、皆さまの暮らしをサポートします。

野村不動産グループ カスタマークラブ
image photo

NEXT PASS 10

2年間のアフターサービス期間終了後も、長期にわたり住まいの不具合に対応し、安心を支える有償のサービス。24時間365日体制の専用デスクがお客様の住まいの不具合をきめ細やかに対応します。
※任意でご加入いただく有料のサービスです。

NEXT PASS 10

ガーデンパートナーズ

ガーデニングのプロが年2回訪問して、お庭のお手入れなどをアドバイスするシステムです。メンテナンスプログラムにより、ノウハウの向上や、身近な植物の環境面での価値などのご理解に役立てていただき、快適で美しい植栽の育成に貢献します。

※引き渡しから1年間のみ(無料)
※本サービスは関西エリアでは「ガーデンアドバイス」という名称で実施しており、2年間で3回ご訪問するサービスとなります。名古屋エリアでは物件によりサービス内容、名称が異なります。

ガーデンパートナーズ
庭木剪定アドバイス風景