【PROUD 公式ホームページ】プランページ|-プラウド吉祥寺本町― JR中央線・京王井の頭線「吉祥寺」駅徒歩5分(東口)・6分(北口)の新築マンション

Image Photo

Image Photo

PLAN

2LDK中心の
プライベートな居心地 ※:36戸(募集対象外住戸3戸含む)中31戸が2LDKとなります。

2LDK

ライフステージに合わせて
スマートに暮らす、
2LDKというプランの魅力。

Market Trends

家族類型別世帯数の推移(東京都)
※1/*印は、国勢調査結果に基づく。
※2/出典:総務省統計局「令和2年国勢調査調査の結果」豊島区HP「令和2年国勢調査の集計結果」
※出典:東京都の統計HP「東京都世帯数の予測(2024年3月)」家族類型別世帯数の推移(東京都)より作成

2人以下世帯が増加の傾向

顕著なのは「2人以下世帯」の急増。
住まいを
求める方の過半数は「2人以下の世帯」に。
将来的に見ても単独世帯と夫婦のみの世帯が
増加すると予測されています

他世代に幅広く対応できる2LDK

2LDK STYLE

居心地のいい2LDKプラン

住戸位置図

住戸位置図

FAMILY/3人暮らし
Family
家族の成長に合わせて活用できるフレキシブルプラン
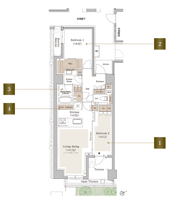
GTYPE
2LDK+N
■専有面積/
62.63(約18.94坪)
■バルコニー面積/5.15㎡
G TYPE
  • :収納

  • :床暖房

  • N:納戸

1
image photo

image photo

引き戸を開け放てば目が届く、安心の子ども部屋に
2
image photo

image photo

家族でゆったり寝られる6畳超の寝室(1)
3
メーカー参考写真

メーカー参考写真

毎日の疲れをいやすマイクロバブルバス
4
参考写真

参考写真

趣味の食器もたっぷり収納できる食器棚実装
参考写真

参考写真

気になる生ゴミを簡単に処理できるディスポーザ※1
メーカー参考写真

メーカー参考写真

リビング・ダイニングの他に洋室(2)にも、冬場も暖かいTES温水式床暖房を実装

※1:一部処理できない生ゴミおよび使用できない洗剤もあります。

DINKS/2人暮らし
Dinks
在宅ワークも快適になるゆとりの二人暮らし
DTYPE
2LDK+SIC
■専有面積/
54.62(約16.52坪)
■バルコニー面積/5.40㎡
D TYPE
  • :収納

  • :床暖房

  • SIC:シューズインクローゼット

1
image photo

image photo

ウォールドアを閉めて個室にすればWEB会議も快適
2
image photo

image photo

ホームパーティー時にはウォールドアを開放して大空間に
3
参考写真

参考写真

コミュニケーションが生まれる対面キッチン
4
参考写真

参考写真

大きなものも収納できて便利なシューズインクローゼット※1
参考写真

参考写真

見た目も美しく、掃除も容易なガラストップコンロ「デリシア」
参考写真

参考写真

高級人造石「フィオレストーン」採用のカウンタートップ(天板)※2

※1:対象タイプ:D・E・F・Ft ※2:継ぎ目がある場合があります。

東京都マンション管理性能表示

※掲載の完成予想CGは、計画段階の図面を基に描き起こしたもので実際とは異なります。家具・調度品等を含め計画段階のもので今後変更になる場合があります。なお、外観の細部・設備機器・配管類及び電柱・架線・道路標識・周辺建物等は一部省略または簡略化しております。植栽は特定の季節の状況を表現したものではなく、竣工時には完成予想図程度には成長しておりません。ボリューム・形状は実際と異なる場合があり、樹種等は変更となる場合があります。タイルや各種部材につきましては、実物と質感・色等の見え方が異なる場合があります。
※掲載の間取り図は計画段階の図面を基に描き起こしたもので実際とは異なります。今後変更になる可能性があります。
※掲載のimage photoは、イメージであり実際の内容(もの)とは異なります。

お問い合わせは「プラウド吉祥寺本町」

0120-036-077

営業時間/平日 11:00~18:00 土日祝 10:00~18:00
定休日/毎週火・水・木曜日

※ご来場・ご見学に際してお手伝いをご希望されるお客様は事前にお電話でご相談ください。

プラウドの物件を探す

プラウドの物件一覧
CLOSE
DIGITAL LIBRARY
MY PAGE
簡単ログイン
エントリー時のお名前とメールアドレスで
マイページへのログインが可能

専用のパスワードはありません。

イメージ

イメージ

ご家族・ご友人に
シェアしやすい機能付き
STEP デジタルライブラリー
閲覧までの4つのステップ
物件エントリー

下記ボタンよりエントリーいただけます。

物件エントリーはこちら
マイページ専用
URLをメールで発送

エントリー後すぐに、お客様のメールアドレスに
デジタルライブラリーへの入室URLをお送りします。

お名前と
メールアドレスで
簡単ログイン

URLをクリック後、エントリーされた方の
お名前とメールアドレスを入力すると
すぐにライブラリーの情報をご覧いただけます。

イメージ
2回目以降
パスワード不要で
ログイン可能

初めてのログインが完了すると
こちらのメールが届きます。
ボタンをタップするとパスワード不要で
入室可能です。
※URLをブックマークすると次回以降スムーズです。

イメージ
CLOSE