【PROUD 公式HP】プラウド住吉本町一丁目 -源流にして新風。-
|野村不動産の新築マンション

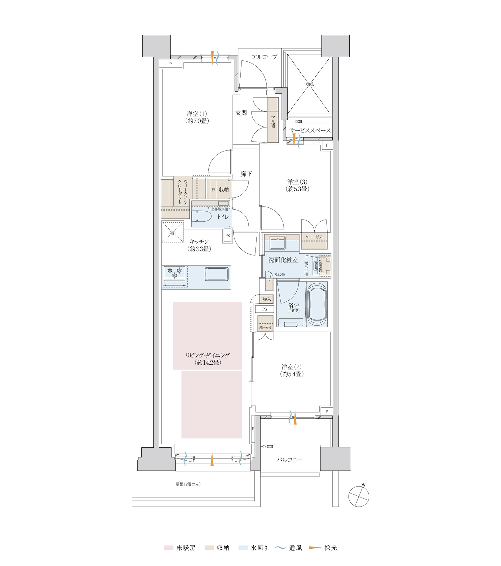
Room Plan

CType

3LDK+WIC

専有面積:78.01㎡

バルコニー面積:5.09㎡
サービススペース面積:1.54㎡

WIC:ウォークインクローゼット

Page Back

Cタイプ間取り図
  • 南西角住戸

    LD約20.0帖以上

    AType

    4LDK+WIC+SIC

    108.39㎡

    View More

  • CType

    3LDK+WIC

    78.01㎡

    View More

  • Premium

    JType

    3LDK+DEN+2N
    +2WIC+SIC

    153.95㎡

    View More

  • Premium

    KType

    3LDK+N+2WIC+SIC

    117.04㎡

    View More

Limited

物件エントリーいただきますとデジタルライブラリーにて、限定公開の間取りをご覧いただけます。

  • ※掲載のimage photoは、イメージであり実際のものとは異なります。
  • ※掲載の完成予想図は計画段階の図面を基に描いたもので実際とは異なります。また、今後変更になる場合があります。なお、外観の細部・設備機器・配管類及び電柱・架線・道路標識・周辺建物等は一部省略または簡略化しております。植栽は特定の季節の状況を表現したものではなく、竣工時には完成予想図程度には成長しておりません。ボリューム・形状は実際と異なる場合があります、樹種等は変更となる場合があります。タイルや各種部材につきましては、実物と質感・色等の見え方が異なる場合があります。
  • ※掲載の図面は計画段階のものであり、今後変更になる可能性があります。

プラウドの物件を探す

プラウドの物件一覧