PROUD SEASON

野村不動産の分譲戸建

A PREMIUM DAY

野村不動産の“邸宅の粋”を結集した、
新築分譲一戸建プラウドシーズン。
その中においても、立地・品質・ゆとり・デザインに贅を尽くすことで、
上質な日常へ、
とっておきの暮らしへと誘う、
厳選の邸宅ラインナップをご案内します。

PROJECT LINE UP

  • プラウドシーズン
    目黒東が丘一丁目

  • プラウドシーズン
    中野鷺ノ宮コート

  • プラウドシーズン
    世田谷千歳台

  • プラウドシーズン
    御殿山

資料をご希望される物件のチェックボタンにチェックを入れて「一括請求ボタン」をクリックすると一括請求ができます。

FEATURES

制限の多い都市部の住宅環境において、導き出された答え。
住むほどに豊かさが深まる住まいを目指して創造された、
「プラウドシーズンギャラリー駒沢」の物件に共通するブランドの思想を、ここにご紹介いたします。

  • 01圧倒的な空間の広がり
    開く

    平均建物面積(ビルトインガレージ含む)
    120㎡超

    プラウドシーズン等々力コート(分譲済)

    プラウドシーズン等々力コート(分譲済)

    都市部でもゆとりある暮らしを実現

    光や風、道路状況も踏まえながら全体の区画を丁寧に調整。分譲戸数を優先するのではなく、快適な住空間のための区画割を追求することで、都市部でも平均建物面積120㎡を実現しています。

    最高天井高(吹き抜け含む)3m超中心

    プラウドシーズン久我山五丁目(分譲済)

    プラウドシーズン久我山五丁目(分譲済)

    空間を活かし、畳数を超えた開放感を

    「広さ」は単なる畳数では語りきれません。高天井や吹き抜け、勾配天井、大開口の窓といった、戸建てならではの縦の空間を活かすことで、畳数を超えた開放感をご体感いただけます。LDKと玄関には標準で間接照明を備えることで、空間の奥行きや広がりを感じていただけます。

    ※「プラウドシーズンギャラリー駒沢」で2023年10月以降に販売された物件のデータに基づき算出(2024年3月現在)

  • 02セキュリティの追求
    開く

    オートロック門扉設置率100%

    プラウドシーズン等々力 壮景の街(分譲済)

    プラウドシーズン等々力 壮景の街(分譲済)

    安心感を強化するオートロック門扉

    防犯面でのご要望が多いオートロック門扉は、設置率100%。万が一の開けっぱなしを防ぎ、お子さまやペットの飛び出し防止にも役立ちます。室内から施錠できる仕様で、戸建てでもより高い安全性を実現しました。

    ビルトインガレージなど
    安心な暮らしを守る工夫

    プラウドシーズン等々力コート(分譲済)

    プラウドシーズン等々力コート(分譲済)

    大切なお車を守るビルトインガレージ

    愛車を盗難や雨風から守るビルトインガレージ。住まいと調和するデザインで、暮らしに安心感と上質さをプラスします。一部住戸では、ビルトインガレージから直接室内に出入りができる導線プランや、室内から愛車を眺められるプランも設計しました。

    ※「プラウドシーズンギャラリー駒沢」で2023年10月以降に販売された物件のデータに基づき算出(2024年3月現在)
    ※ビルトインガレージがない住戸もあります

  • 03ハイクオリティな設備仕様
    開く

    外国製大型食洗器採用率
    100%

    ダブルボウル洗面や大型WICなど
    ハイクラスな設備仕様

    外国製大型食洗機やダブルボウル洗面、大型WICなど、暮らしをラグジュアリーに彩るハイクラスの設備仕様を採用しています。機能性と美しさを兼ね備えた空間は、住むほどにその価値をご実感いただけるはずです。

    ワイドウォークインクローゼット(施工例)

    ワイドウォークインクローゼット
    (施工例)

    ダブルボウル洗面(施工例)

    ダブルボウル洗面(施工例)

    食器洗浄乾燥機 Bosch(施工例)

    食器洗浄乾燥機 Bosch(施工例)

    天然石天板のキッチン(施工例)

    天然石天板のキッチン(施工例)

    ※「プラウドシーズンギャラリー駒沢」で2023年10月以降に販売された物件のデータに基づき算出(2024年3月現在)
    ※採用されている設備仕様は物件ごとに異なります
    ※WIC=ウォークインクローゼット
    ※ダブルボウル洗面、大型WICがない住戸もあります

  • 04洗練された外観デザイン
    開く

    複数の素材を
    組み合わせで生まれるニュアンス

    唯一無二の外観デザイン

    ガラス手摺や複数メーカーのタイル、自然石を巧みに組み合わせ、唯一無二の外壁デザインを創出。建物の細部に至るまで素材を厳選し、意匠性と上質さを追求しました。帰るたびに誇らしさを感じられる佇まいをお届けします。

    プラウドシーズン等々力コート(分譲済)

    プラウドシーズン等々力コート
    (分譲済)

    プラウドシーズン久我山五丁目(分譲済)

    プラウドシーズン久我山五丁目
    (分譲済)

理想を、日常いえに。

愛する街で、広さを求めたい。
自分では発想できなかった、
感動のあるデザインを邸宅に求めたい。
忙しい毎日の中で、
すみずみまで快適性に貫かれた空間に暮らしたい。
理想を、日常に。
毎日を変えていく邸宅の在り方が、ここにある。

自分では発想できなかった、
感動のあるデザインを邸宅に求めたい。
理想を、日常に。
毎日を変えていく邸宅の在り方が、ここにある。

プラウドシーズン目黒東が丘一丁目街並み完成予想CG

街並み完成予想CG

MEGUROHIGASHIGAOKA

プラウドシーズン目黒東が丘一丁目

東急田園都市線「駒沢大学」駅徒歩8~9分、駒沢オリンピック公園徒歩6分。
延床面積168.29㎡・185.25㎡の広さが織りなすプランニングと上質な設備仕様。

公式HP 物件エントリー

STAGE12LDK+S[納戸]+WIC+WIP+SIC
ビルトインカースペース

土地面積/119.39㎡(36.11坪)
建物面積/185.25㎡(56.03坪)
1階面積/69.76㎡
2階面積/74.85㎡
3階面積/40.64㎡
(ビルトインカースペース面積約19.93㎡・ポーチ面積 約2.89㎡含む)

主寝室完成予想図[stage1]

主寝室完成予想図[stage1]

1F間取り図
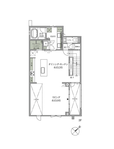
2F間取り図
3F間取り図
こちらの物件の魅力を表示 この他の間取りは公式HPへ
プラウドシーズン中野鷺ノ宮コート街並み完成予想CG

街並み完成予想CG

SAGINOMIYA

プラウドシーズン中野鷺ノ宮コート

山手線へ1駅8分、急行停車「鷺ノ宮」駅徒歩8分の場所に誕生。
全邸敷地・延床面積100㎡超の全18邸、街並み創造プロジェクト始動。

公式HP 物件エントリー

STAGE14LDK+WIC+SIC+サービス収納
(ロフトタイプ)

建物延床面積/107.28㎡(約32.45坪)
1階面積/52.92㎡
2階面積/54.36㎡
サービス収納面積(ロフトタイプ)/6.45㎡
※サービス収納面積は建物延床面積には含まれません。

鷺の杜小学校 (通学校 / 約230m / 3分)

鷺の杜小学校 (通学校 / 約230m / 3分)

鷺宮八幡神社

鷺宮八幡神社

1F間取り図
2F間取り図
こちらの物件の魅力を表示 この他の間取りは公式HPへ
プラウドシーズン世田谷千歳台街並み完成予想CG

街並み完成予想CG

CHITOSEDAI

プラウドシーズン世田谷千歳台

都心ダイレクトアクセスが叶う「新宿」駅21分、「大手町」駅35分。
世田谷区に描く、延床面積約92㎡~117㎡のゆとり×全15邸の美しい街並み。

公式HP 物件エントリー

STAGE103LDK+サービスルーム(納戸)+SIC+サービス収納(小屋裏タイプ)

敷地面積/95.37㎡(約28.84坪)
建物延床面積/95.34㎡(約28.84坪)
1階面積/47.67㎡
2階面積/47.67㎡
サービス収納面積/7.24㎡(約2.19坪)
※サービス収納面積は建物延床面積には含まれません。

リビング完成予想図(stage4)

リビング完成予想図(stage4)

1F間取り図
2F間取り図
こちらの物件の魅力を表示 この他の間取りは公式HPへ
プラウドシーズン御殿山外観完成予想図

外観完成予想図

GOTENYAMA

プラウドシーズン御殿山

第一種低層住居専用地域ならではの落ち着いた住環境を享受できる全20邸
延床面積120㎡超中心のゆとりある邸宅、景石や外構照明計画による重厚感のあるデザイン

公式HP 物件エントリー

STAGE162LDK+2SR+WIC+備蓄倉庫+サービス収納
(ロフトタイプ)

建物延床面積/122.71㎡(約37.11坪)
1階面積/59.70㎡
2階面積/63.01㎡
(ビルトインカースペース面積約16.51㎡・備蓄倉庫面積約1.42㎡含む)
サービス収納面積(ロフトタイプ)/7.13㎡(約2.15坪)

街並完成予想CG

街並完成予想CG

1F間取り図
2F間取り図
こちらの物件の魅力を表示 この他の間取りは公式HPへ

資料をご希望される物件のチェックボタンにチェックを入れて「一括請求ボタン」をクリックすると一括請求ができます。

快適を、人生くらしに。

定期的なアフターサービスだけでなく、
お住まいの方に寄り添っていく。
緊急時対応から、特別なイベントまで、
様々な暮らしのニーズにお応えするための体制。
理想が今ここにあるからこそ、
末永くその快適を提供し続けていきます。

image movie※実際の住戸とは異なります。

定期的なアフターサービスだけでなく、
お住まいの方に寄り添っていく。
理想が今ここにあるからこそ、
末永くその快適を提供し続けていきます。

MOVIE

「プラウドシーズン」の
上質なる世界へ。

安心・安全への厳しい姿勢、そして新しい発想を守り、
「プラウドシーズン」が体現する日常には、
上質を感じる一瞬、豊かさを謳歌する時が連なっていく。
その世界観を、ショートムービーにて是非ご覧ください。

FOR THE SPECIAL YOU

あなただけの理想を物語る日常(いえ)であること。
プラウドシーズンによる邸宅の粋を、あなたに。

DEN=納戸 WIC=ウォークインクローゼット SIC=シューズインクローゼット

※本映像は2024年9月にプラウドシーズン等々力コートの現地ハウス(ST1)、プラウドシーズン等々力 壮景の街、プラウドシーズンギャラリー駒沢のコンセプトルームにて撮影したものです。設備・仕様はタイプにより異なる場合があります。詳しくは係員にお問い合わせください。家具・照明・調度品・備品等は販売価格に含まれておりません。映像は実物と質感・色等の見え方が異なる場合があります。コンセプトルームの仕様・形状等は掲載物件とは異なります。

※掲載の外観完成予想図は計画段階の図面を基に描き起こしたもので実際とは異なります。また、今後変更になる場合があります。なお、外観の細部・設備機器・配管類及び電柱・架線・道路標識・周辺建物等は一部省略または簡略化しております。植栽につきましては特定の季節の状況を表現したものではなく、竣工時には完成予想図程度には成長しておりません。ボリューム・形状は実際と異なる場合があり、樹種等は変更となる場合があります。家具・調度品等は販売価格に含まれておりません。タイルや各種部材につきましては、実物と質感・色等の見え方が異なる場合があります。

※掲載のリビング・ダイニング完成予想図は計画段階の図面を基に描き起こしたもので実際とは異なります。家具・照明・調度品等は販売価格に含まれません。また一部オプションが含まれており、設備・仕様等は住戸により異なります。

※掲載の間取り図等は計画段階の図面を基に描き起こしたもので実際とは異なります。また、今後変更になる場合があります。

※距離表示については地図上の概測距離を、徒歩分数表示については80mを1分として算出し、端数を切り上げたものです。

※1.全区画を対象とした所要時間を掲載しております。