<公式>プランページ|URAWA THE TOWER|野村不動産 -PROUD-

image photo

image photo

PLAN

VARIATION
Living Dining天井高 約2,650mm。
開放的なやすらぎを描くプライベートスペース。
寛

PICKUP PLAN

ピックアッププラン

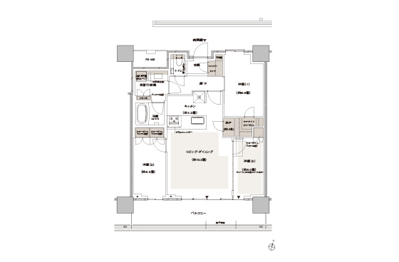
WGTYPE

3LDK+N+SIC

76.23

WG type
  • 穏やかな時間が流れる、
    76m²超のゆとりある住空間。
  • 夕陽に包まれる、
    西向きならではの心地よさ。
  • 収納力も充実、
    納戸とSICで暮らしを美しく整える。

VIEW

眺望
現地より27階相当の高さから東・西・南方向を望む眺望写真(2024年1月撮影)
パノラマ眺望写真(27階相当より撮影)
パノラマ眺望写真(27階相当より撮影)
パノラマ眺望写真(27階相当より撮影)
パノラマ眺望写真(27階相当より撮影)

INFORMATION

第3期3次
モデルルーム案内会開催中

下記ご予約フォームにて、
モデルルーム案内会のご予約を受け付けております。
RESERVE
来場予約はこちらから
image photo

image photo

まず物件の情報を知りたい方向け 物件エントリー受付中

物件エントリーをしていただくと
デジタルライブラリーにて未公開情報をご覧いただけます。

LIMITED CONTENTS 限定コンテンツ

  • MERIT 1

    未公開間取り

    image photo

    image photo

  • MERIT 2

    VR模型

    外観完成予想CG

    外観完成予想CG

  • MERIT 3

    VRモデルルーム

    image photo

    image photo

  • MERIT 4

    住戸表・
    物件パンフレット

    image photo

    image photo

ENTRY
物件エントリーはこちらから

※掲載の図面は計画段階のもので変更になる場合がございます。予めご了承ください。
※眺望・景観は、各階・各住戸により異なり、今後周辺環境の変化に伴い将来に渡って保証されるものではありません。
※掲載の外観完成予想CGは、計画段階の図面を基に描き起こしたもので実際とは異なります。家具・調度品は販売価格に含まれません。なお、完成予想CGは各種機器・配管・素材等および周辺建物・電柱・架線は一部省略、または簡略化しております。タイルや各種部材等につきましては、実際と質感・色等の見え方が異なる可能性があります。また、今後変更になる可能性があります。
※情報は2024年4月現在のもので今後変更となる場合があります。
※掲載のパノラマ眺望写真は本物件27階相当(約96m)より2024年1月に撮影したものに加工を施したもので実際とは異なります。

お問い合わせは
URAWA THE TOWER マンションギャラリー

0120-525-002

営業時間/平日 11:00~18:00 土日祝 10:00~18:00
定休日/毎週火・水・木曜日
※ご来場・ご見学に際してお手伝いをご希望されるお客様は事前にお電話でご相談ください。

プラウドの物件を探す

プラウドの物件一覧